PH (901) 881-5846
Fax (901) 881-5847
The CompanyPhoto GalleryServicesSafetyContact Us

The SOLUTION to your STEEL needs!
Services:Detailing
​Detailing
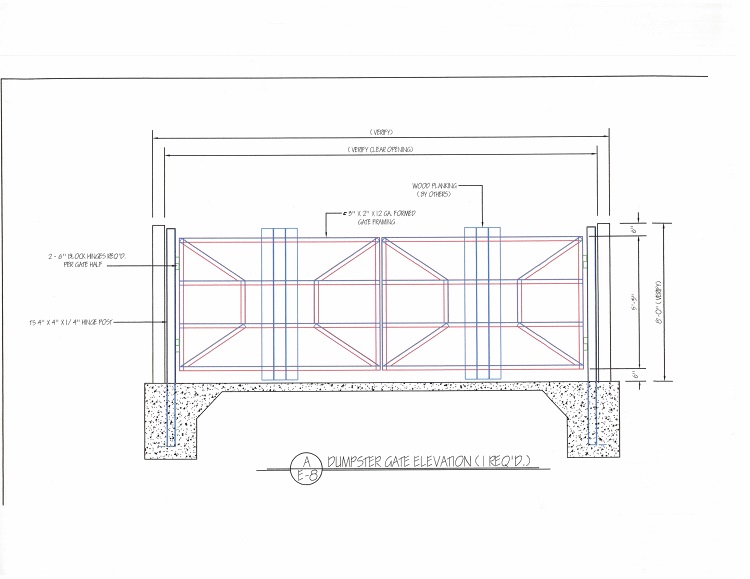
  • Once contracted Edwards Steel Solutions will prepare shop drawings for approval.

  • These drawings are based on the Architectural/ Structural Drawings we receive from the contractor.

  • Edwards Steel Solutions utilizes CAD software to streamline the design process for all our products.

  • The shop drawings will be sent to the contractor for approval and upon approval the project is ready for fabrication.


Request Information
Name
Company
Phone
Email
Project Location (city/state)
Project Application
Project Description
Disclaimer: The drawings with this website are for illustrative purposes only and are not intended for construction. These images are the property of the Edwards Steel Solutions, LLC and all common law, statutory and other reserved rights shall be retained by same. These images or any portions of this website may not be reprinted, copied, scanned or reproduced in anyway without written permission from Edwards Steel Solutions, LLC. The graphics, images, and photography included in this website are not binding design elements and are subject to change without notice at the discretion of Edwards Steel Solutions, LLC. All site design, engineering, architectural graphics and images are subject to final design and approval.